Property Details.

31 Bedroomed Block Of Apartments For Sale
London Road, Highfield Road, S
S2 4US
Guide Price: £900,000
Number of bedrooms
31
Number of bathrooms
0
Status
Sold STC

  • Fully Operational HMOs – Immediate income from 31 well-proportioned bedrooms
  • Value-Add Potential – Minor updates could boost income and property value
  • Prime Location – Abbeydale Road with excellent transport links, shops, cafés, and city access
  • Spacious & Versatile – Large communal areas, kitchens, and bathrooms across four floors
  • High Tenant Demand – Students, young professionals, and sharers love this area
  • Strong Returns – Average yield close to 10% at guide price
  • Portfolio Expansion Ready – Ideal for investors looking to scale up
  • For Sale by Modern Auction – T & C’s apply, subject to reserve price, buyers fees apply

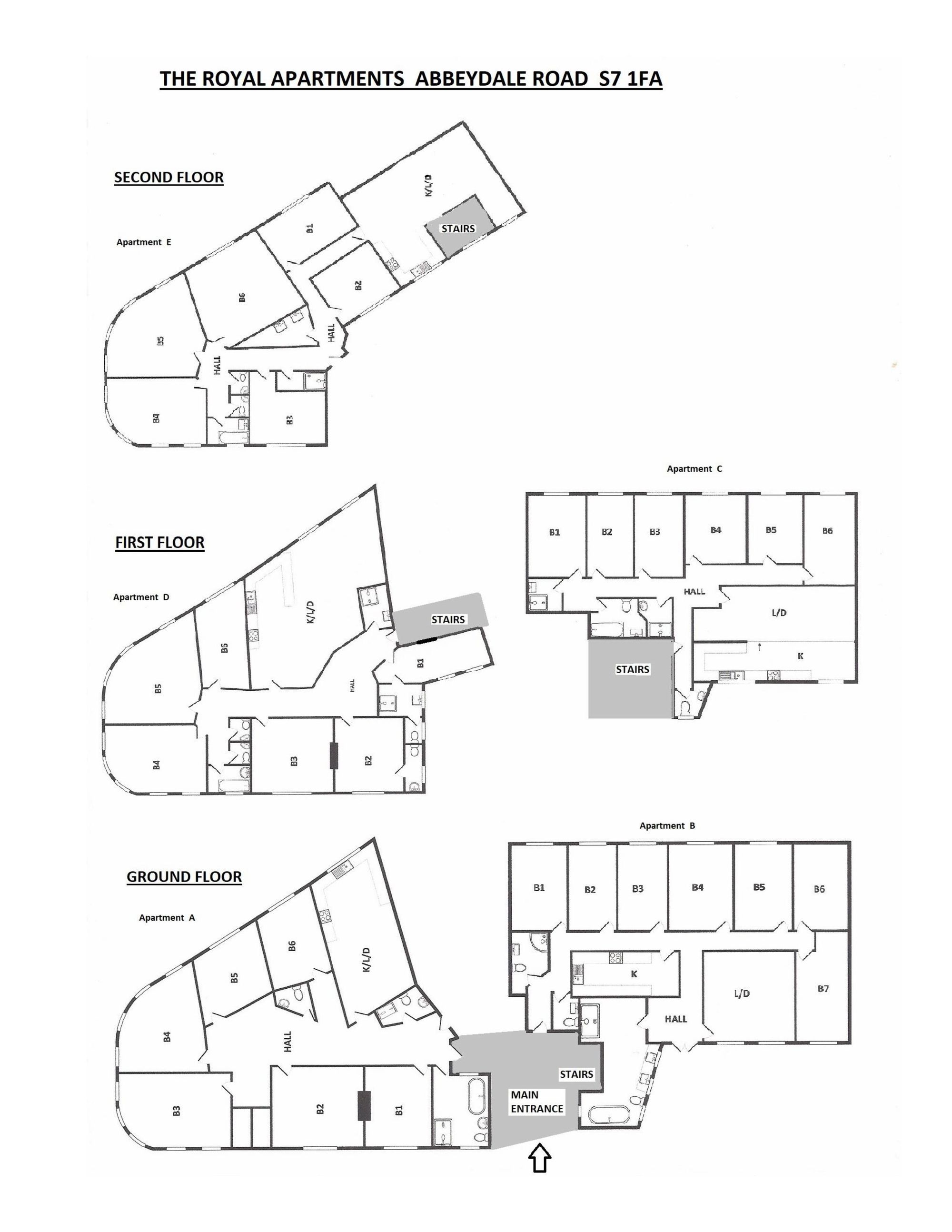
Royal Hotel, 1 Abbeydale Road, Sheffield – 31-Bed HMO Investment Opportunity in Sheffield’s S7 Hotspot!

Step inside the Royal Hotel – a striking Victorian building converted into five self-contained HMOs: four 6-bedroom flats and one 7-bedroom flat, totalling 31 bedrooms. Perfect for savvy investors looking for high-yield, low-hassle rental income in a prime location.

Currently generating around £118,000 per annum, with potential to reach £168,000 if all rooms are fully let and minor updates are completed, this property delivers an average yield close to 10% based on guide price. Fully set up as HMOs, it just needs a modern update to unlock its full earning potential.

Why Investors Love This Property

  • Fully operational HMOs – immediate income from 26–31 well-proportioned bedrooms, depending on occupancy and minor updates

  • Value-add potential – refurbishment of void or unusable rooms could significantly boost income

  • Prime location – Abbeydale Road with excellent transport links, shops, cafés, and city access

  • Spacious & versatile – large communal areas, kitchens, and bathrooms across four floors

  • Period charm – traditional features combined with HMO functionality

  • High tenant demand – popular with students, young professionals, and sharers

  • Strong returns – average yield close to 10% at guide price

  • Portfolio expansion ready – ideal for investors looking to scale up

This is a turnkey investment with huge potential for growth – whether you’re a seasoned HMO investor or looking to build your portfolio, the Royal Hotel ticks every box.

Royal Hotel, 1 Abbeydale Road, Sheffield – 31-Bed HMO Investment Opportunity in Sheffield’s S7 Hotspot!

Step inside the Royal Hotel – a striking Victorian building converted into five self-contained HMOs: four 6-bedroom flats and one 7-bedroom flat, totalling 31 bedrooms. Perfect for savvy investors looking for high-yield, low-hassle rental income in a prime location.

Currently generating around £118,000 per annum, with potential to reach £168,000 if all rooms are fully let and minor updates are completed, this property delivers an average yield close to 10% based on guide price. Fully set up as HMOs, it just needs a modern update to unlock its full earning potential.

Why Investors Love This Property

  • Fully operational HMOs – immediate income from 26–31 well-proportioned bedrooms, depending on occupancy and minor updates

  • Value-add potential – refurbishment of void or unusable rooms could significantly boost income

  • Prime location – Abbeydale Road with excellent transport links, shops, cafés, and city access

  • Spacious & versatile – large communal areas, kitchens, and bathrooms across four floors

  • Period charm – traditional features combined with HMO functionality

  • High tenant demand – popular with students, young professionals, and sharers

  • Strong returns – average yield close to 10% at guide price

  • Portfolio expansion ready – ideal for investors looking to scale up

This is a turnkey investment with huge potential for growth – whether you’re a seasoned HMO investor or looking to build your portfolio, the Royal Hotel ticks every box.

AUCTIONEERS COMMENTS
This property is for sale by the Modern Method of Auction, meaning the buyer and seller are to Complete within 56 days (the "Reservation Period"). Interested parties personal data will be shared with the Auctioneer (iamsold). If considering buying with a mortgage, inspect and consider the property carefully with your lender before bidding. A Buyer Information Pack is provided. The winning bidder will pay £349.00 including VAT for this pack which you must view before bidding.

--
The buyer signs a Reservation Agreement and makes payment of a non-refundable Reservation Fee of 4.50% of the purchase price including VAT, subject to a minimum of £6,600.00 including VAT. This is paid to reserve the property to the buyer during the Reservation Period and is paid in addition to the purchase price. This is considered within calculations for Stamp Duty Land Tax. Services may be recommended by the Agent or Auctioneer in which they will receive payment from the service provider if the service is taken. Payment varies but will be no more than £450.00. These services are optional.